Planning Application Drawings

We produce planning application drawings for homeowners and professionals. Each project is unique, but as a guide each set of planning drawings contains:-
  • floor plans showing the internal layout;
  • front, rear, and side elevations showing the external features of the property;
  • one or two section drawings showing the internal levels, staircases, etc;
  • overall site/garden plan if applicable.
Here are some examples:

 


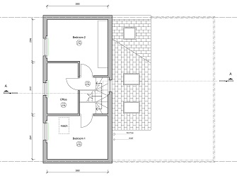
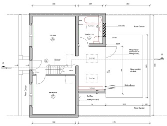
Ground Floor PlanFirst Floor Plan
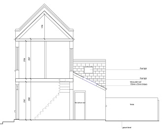
 Section AA Front Elevation


To see a full set of existing and proposed drawings from a recent project, click and download the following PDF file