Bathroom Drawings
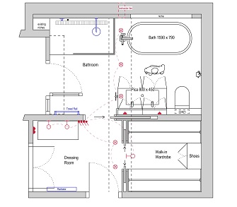
| We produce detailed bathroom plans and elevations for professionals (architects, interior designers, etc), and also for homeowners planning out their own bathroom. These drawings can show the exact products being specified and allow the client to visualise the finished bathroom. Bathroom drawings can include detailed tile layouts where the tiles are of mixed sizes or where the tiles are very large and the position of the grout line is critical. | ![]() |
![]() | ![]() |
![]() | ![]() |




