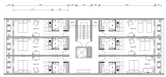
Space Planning Drawings
| The goal of Space Planning is the efficient use of space and a layout that fits the natural workflow of the business. The Space Planning process often begins with a site survey, including an inventory of equipment and furniture sizes, unless drawings are already available. We then plan out the office locations, desk, furniture and equipment placement, taking into account security/access issues and other design considerations. | ![]() |
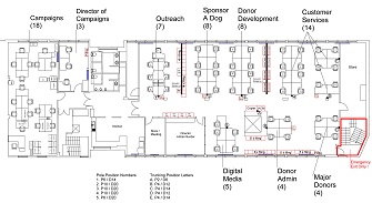
We have done Space Planning for the City of London Police, Dogs Trust, Metroline and The Prince's Trust. We are often requested by Facility Managers to plan out a space, in order to fit in the maximum number of workstations. Contact us to discuss your Space Planning requirements. | ![]() |

